
倘若您有什么疑問或是對我公司有任何
的意見和建議都可通過:
的意見和建議都可通過:
公司名稱: 鞏義市西村鎮華豐給排水材料廠
公司地址: 河南省鞏義市西村開發區
電話: 0371-64033589
手機: 18638168566,13683712868
13783416000(技術)
聯系人: 王先生,位女士
郵政編碼: 451200
E-MAIL: 1696257948@qq.com
網址:http://www.qdcws.com/
網址:http://www.qdcws.com/
小拉桿橫向波紋補償器
標簽:該產品可按照客戶要求訂做,如需訂做請向客服提供您的參數表
華豐竭誠為您服務,熱線電話0371-64033589
![]() |
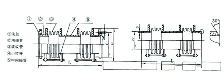
JXH型小拉桿橫向波紋補償器習慣上也叫膨脹節或伸縮節。由構成其工作主體的波紋管{一種彈性元件}和短管、支架、法蘭、導管等附件組成。小拉桿橫向型補償器屬于一種補償元件。利用其工作主體波紋管的有效伸縮變形,一吸收管線、導管、等由熱脹冷縮等原因而產生的尺寸變化,或補償管線的軸向和角向位移。也可用于降噪減震。
橫向小拉桿波紋補償器由兩段波紋管、中間接管及帶有限螺母的小拉桿等零件組成,它在吸收管系任意平面內的橫向位移,同時吸收軸向位移。小拉桿不能承受內壓推力。
安裝使用注意事項:
1、用戶使用時若不使用小拉桿,請在訂貨時注明。
2、用戶使用時若需要小拉桿,在安裝后務必將螺母松開并離天耳板(或撐板)一段距離(數值由由向補償量確定)。
3、若實際補償量大于樣本上的規定值(壽命≤1000次),產品在安裝后必須拆除小拉桿。
設計溫度:-20℃~+400℃ 產品代號:JXH 型號標注:JXH 波紋管式-連接形式 壓力-通徑-補償量
注大于DN600的產品可定制加工,來圖來函可制作非標管徑。
更多產品詳情可來電咨詢
聯系人:王先生 13783416000 魏女士 13683712868
上一篇:JDH型大拉桿橫向波紋補償器
下一篇:軸向型內壓式波紋補償器
版權所有:華豐管道 地址:河南省鞏義市西村開發區 服務熱線:0371-64033589 管理入口E-MAIL: 1696257948@qq.com 手機: 18638168566,13783416000
網站備案/許可證號: 豫ICP備11026537號-5
豫公網安備 41910102000259號 技術支持:鞏義開啟網絡
本網站支持新廣告法,為不影響客戶瀏覽,頁面區域用詞正在排查修改,本店所有頁面絕對化用詞和功能性用詞在此聲明前全部失效,不接受不妥協任何形式的絕對化用詞和功能性用詞賠付,希望各位消費者理解,職業打假人高抬貴手。 網站備案/許可證號: 豫ICP備11026537號-5
豫公網安備 41910102000259號 技術支持:鞏義開啟網絡


